Beschrijving
In een auto-luwe straat gelegen ruime hoekwoning met een eigen oprit, ruime woonkamer, keurige keuken, modern sanitair, 4 slaapkamers, kunststof kozijnen met HR++ glas en zonnige tuin, is zeker het bekijken waard! Op loopafstand bevinden zich scholen, ook de internationale school, winkels, medische voorzieningen, busverbindingen en diverse kinderspeelplaatsen. Nabij uitvalswegen (A325 en A50) richting Elst, Arnhem en Nijmegen. Ook is de wijk Schuytgraaf dichtbij.
INDELING
Begane grond:
Hal, meterkast, net maar standaard toilet met fonteintje. Zonnige tuingerichte woonkamer van 28 m² met trapkast en openslaande deuren naar de tuin toe. Open keuken met L-vormige inbouwkeuken welke voorzien is van diverse inbouwapparatuur. Te weten: - Koel-/vriescombinatie. - Vaatwasser - 4 pits gasstel en afzuigkap. Begane grond met licht eiken laminaatvloer.
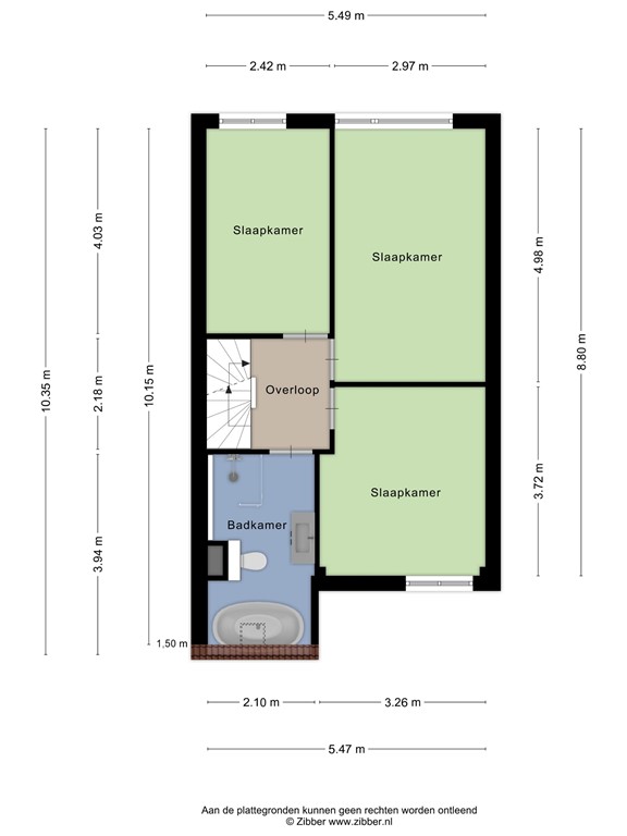
1e Verdieping: Overloop, 3 slaapkamers van respectievelijk 10, 12 en 15 m². Lichte badkamer waarbij recentelijk het tegelwerk is vernieuwd, ligbad en aparte inloopdouche, 2e toilet, wastafelmeubel en designradiator. Ook deze verdieping is voorzien van een laminaatvloer.
2e Verdieping: Overloop met cv-, was- en bergruimte. Volwaardige ruime 4e slaapkamer van 12 m² met wastafel en bergruimte. Verdieping met laminaatvloer.
TUIN:
De zonnige en verzorgde achtertuin met achterom is op het Westen gelegen.
BIJGEBOUWEN
Aangebouwde stenen berging van 6 m² met elektra. Grote houten tuinhuis van 14 m² met elektra.
OPPERVLAKTEN EN INHOUD
Perceeloppervlakte: 145 m². Woonoppervlakte: 124 m². Overige inpandige ruimten: 6.20 m². Externe bergruimte: 13.70m². Bruto vloeroppervlak woning: 181,50 m². Bruto inhoud woning: 460,78 m³.
NADERE INFORMATIE Bouwjaar: 1976. Verwarming: Bosch HR Combiketel 2007. Meterkast: 8 groepen en 2 aardlekschakelaars. Isolatievoorzieningen: Dakisolatie. HR++ glas. Algemeen onderhoud binnen: Goed. Algemeen onderhoud buiten: Goed. Volledig voorzien van kunststof kozijnen met HR++. Elektrisch zonnescherm mechanische ventilatie. Energielabel: C.
Deze informatie is door ons met de nodige zorgvuldigheid samengesteld. Onzerzijds wordt echter geen enkele aansprakelijkheid aanvaard voor enige onvolledigheid, onjuistheid of anderszins dan wel de gevolgen daarvan. Alle opgegeven maten en oppervlakten zijn indicatief.
Plattegronden
182425330_1627659_boxte_begane_grond_first_design_20260218_7a57aa.jpg
182425330_1627659_boxte_eerste_verdiepi_first_design_20260218_92c0a5.jpg
182425330_1627659_boxte_tweede_verdiepi_first_design_20260218_55e451.jpg
182425330_1627659_boxte_berging_first_design_20260218_a25cca.jpg
182425330-296777503-se-149563543-1771411739863.png
182425330-296785939-se-149563543-1771411739863.png
182425330-296786671-se-149563543-1771411739863.png
182425330-296789263-se-149563543-1771411739863.png