Beschrijving
Sfeervolle jaren ’30 woning nabij het centrum van Arnhem – volledig naar eigen smaak te moderniseren!
Ben je op zoek naar een charmante, betaalbare woning die je helemaal naar eigen wens kunt opknappen? Dan is dit je kans! Deze karakteristieke tussenwoning ligt op een fantastische locatie: op een steenworp afstand van de Rijn en op korte afstand van het bruisende centrum van Arnhem. De woning bevindt zich in het vooroorlogse deel van de wijk Malburgen-West, een buurt met een prettige mix van authentieke woningen en moderne nieuwbouw.
De omgeving
In de directe omgeving vind je alle denkbare voorzieningen: scholen, winkels, openbaar vervoer en sportfaciliteiten. Ook de uitvalswegen richting de A12, A15 en A50 zijn snel en gemakkelijk te bereiken. Een ideale plek voor wie rustig wil wonen met de stad binnen handbereik.
De woning
De woning is sinds 1938 in bezit van één familie. Het schilderwerk is netjes bijgehouden en in 2015 is het dak volledig vernieuwd en geïsoleerd. De kunststof dakkapel is voorzien van kiepkantelramen en horren.
De zonnige tuin ligt op het zuidwesten en beschikt over een ruime berging over de gehele breedte van het perceel, voorzien van elektra. De tuin is tevens bereikbaar via een achterom. Verder zijn de ramen deels uitgerust met elektrische en deels met handmatig bedienbare rolluiken.
Indeling
• Begane grond:
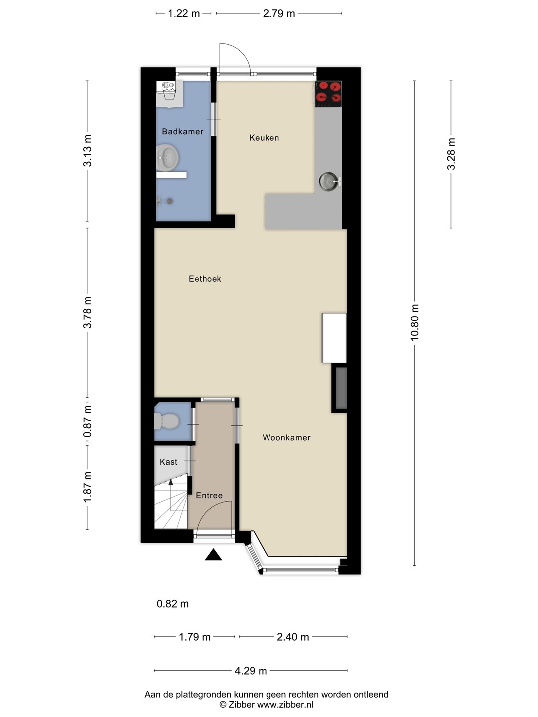
Entree met hal, trapopgang en toilet. De lichte woonkamer heeft aan de voorzijde een sfeervolle erker en wordt breder in het midden van de woning, wat zorgt voor een ruimtelijk gevoel. Aan de achterzijde bevindt zich de uitbouw met de keuken. Ook de badkamer bevindt zich op de begane grond.
• Eerste verdieping:
Hier vind je twee ruime slaapkamers (voorheen drie).
• Tweede verdieping:
Via een vaste trap bereik je de zolderverdieping met dakkapel. Deze ruimte is ideaal als extra slaapkamer, werkkamer of hobbyruimte.
De zonnige tuin met achterom en grote berging maakt het geheel compleet.
Bijzonderheden
• Bouwjaar: 1938
• Woonoppervlakte: ca. 72 m² (exclusief zolder van ca. 12 m²)
• Inhoud: ca. 300 m³
• Gedeeltelijk voorzien van dubbel glas
• Dak vernieuwd en geïsoleerd in 2015
• Verwarming middels een verouderde VR-ketel
• Tuin op het zuidwesten met achterom en berging
• Woning kan geheel naar eigen wens worden gemoderniseerd
• Bij woningen ouder dan 20 jaar wordt standaard een asbest- en ouderdomsclausule opgenomen.
Kortom
Een charmante jaren ’30 woning op een geweldige locatie, met volop mogelijkheden om er je eigen droomhuis van te maken. Kom kijken en laat je verrassen door de ruimte, de ligging en het potentieel dat deze woning biedt!