Beschrijving
Deze goed onderhouden tussenwoning is gelegen op een aantrekkelijke en gewilde locatie in de wijk Munten II. Aan de voorzijde ligt een autovrije straat, wat in combinatie met het ruim opgezette speelveld zorgt voor een zeer kindvriendelijke woonomgeving. De fraai aangelegde achtertuin beschikt over een vrijstaande stenen berging en een achterom naar de privéparkeerplaats.
De gestelde vraagprijs betreft een "bieden vanaf prijs", biedingen vanaf € 400.000,- k.k. zullen door verkoper in behandeling genomen worden
Indeling
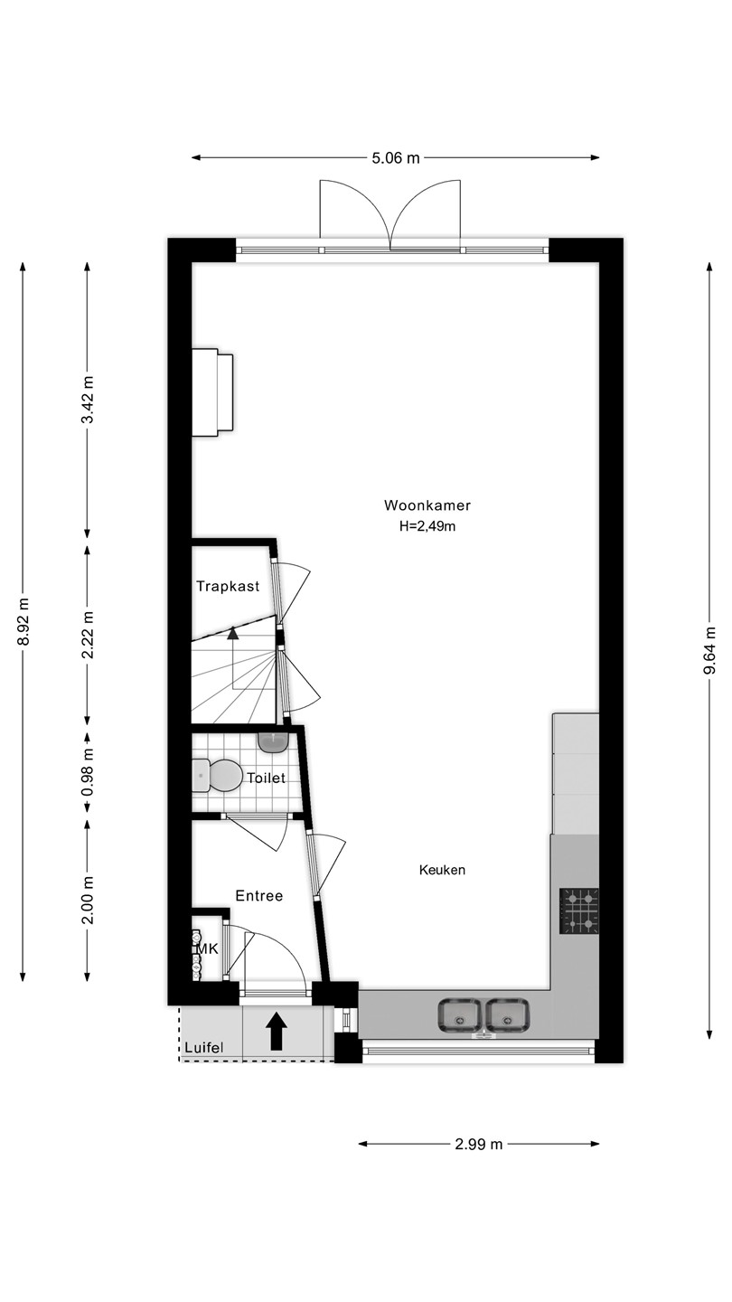
Begane grond
Overdekte entree, hal met meterkast en luxe toiletruimte met hangcloset en fonteintje. De moderne, straatgerichte keuken is compleet uitgerust met een ingebouwde koelkast en vriezer, combimagnetron, 5-pits gaskookplaat, moderne afzuigschouw en vaatwasser.
De ruime, tuingerichte woonkamer is afgewerkt met een laminaatvloer en strak gestuukte wanden. Onder de trap bevindt zich een praktische vaste bergkast. Via openslaande deuren is er toegang tot de fraai aangelegde tuin met moderne serre, waar u optimaal van het buitenleven kunt genieten. Tevens is er een vrijstaande stenen berging en een achterom naar de privéparkeerplaats.
Eerste verdieping
Overloop met toegang tot drie slaapkamers, allen voorzien van strak gestuukte wanden en een laminaatvloer. Eén slaapkamer beschikt over een stijlvolle kastenwand en wordt momenteel gebruikt als walk-in closet. De luxe badkamer is ingericht met een wastafelmeubel, ligbad, tweede hangcloset en een douche met cabine.
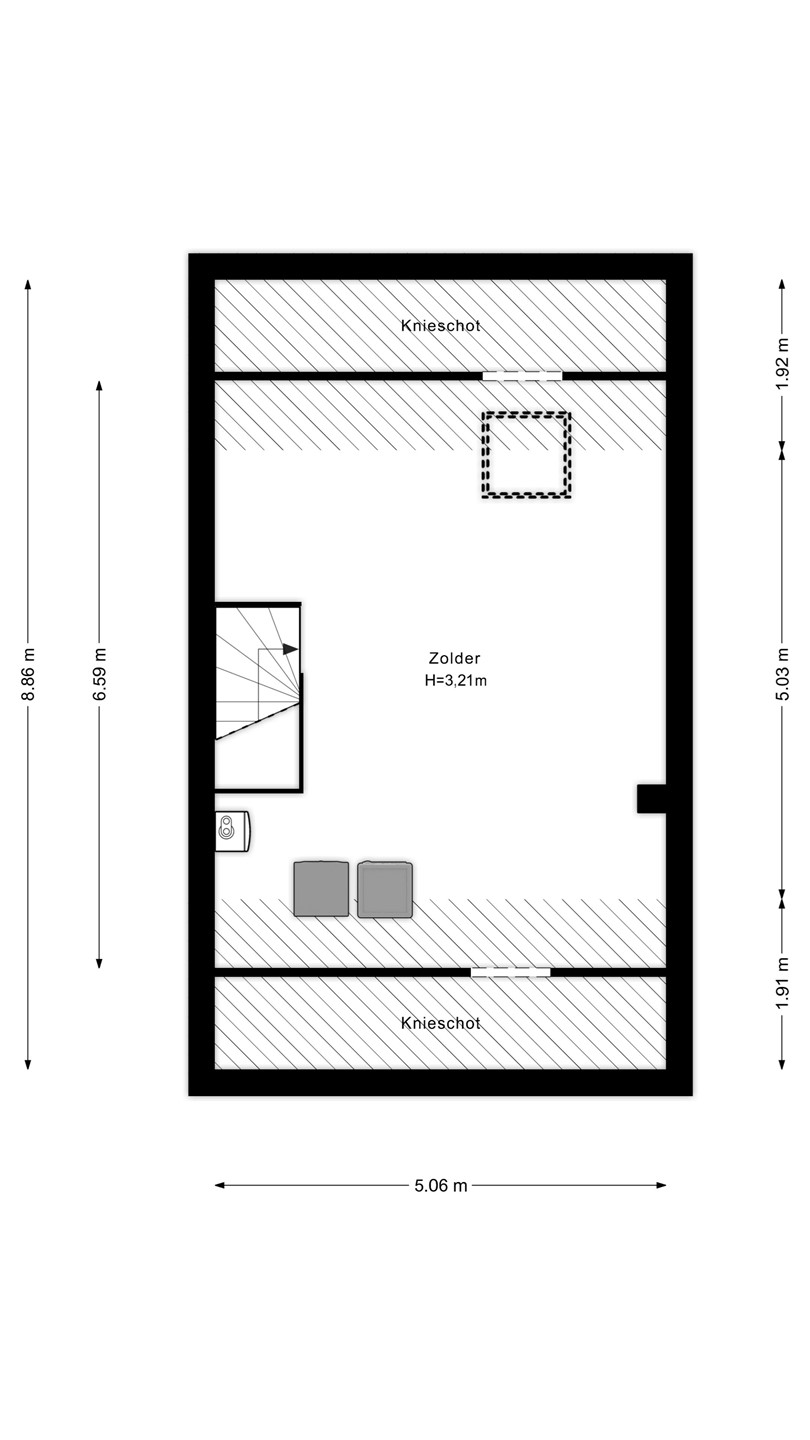
Tweede verdieping
Vaste trap naar een ruime zolder met dakraam, waar eenvoudig een vierde slaapkamer kan worden gerealiseerd. Hier bevinden zich tevens de cv-ketel, zonneboiler, warmte terugwin unit en de wasmachineaansluiting.
Bijzonderheden
• Bouwjaar: 2002
• Fraai afgewerkt en goed onderhouden
• Luxe keuken en badkamer
• Ruime, verzorgde tuin met stenen berging
• Privéparkeerplaats
• Energielabel B
• Intergas ( lease € 32 p/mnd)
• Aanvaarding in overleg
• Prijsbewustmakelaars – telefoonnummer 0321-333616
Laat je verrassen door de Escudo 47 in Dronten en plan snel een bezichtiging!
Deze informatie is door ons met de nodige zorgvuldigheid samengesteld. Onzerzijds wordt echter geen enkele aansprakelijkheid aanvaard voor enige onvolledigheid, onjuistheid of anderszins, dan wel de gevolgen daarvan. Alle opgegeven maten en oppervlakten zijn indicatief.