Beschrijving

MANDENMAKERSGILDE 3, DRONTEN

Let op! Betreft een bieden vanaf prijs .

Welkom op Mandenmakersgilde 3 – een royale en goed onderhouden vrijstaande woning met maar liefst zes slaapkamers, gelegen in de populaire woonwijk De Gilden te Dronten.

Deze kindvriendelijke wijk staat bekend om de autoluwe straten en het vele groen. Direct om de hoek vindt u een ruime groenstrook met speelvoorzieningen, waaronder een kabelbaan – ideaal voor gezinnen met kinderen. Daarnaast zijn scholen, een gezondheidscentrum en winkelcentrum Dronten-West op korte afstand bereikbaar.

De woning zelf biedt verrassend veel leefruimte, met een ruime tuin met meerdere terrassen én energielabel A.
Een ideale combinatie voor grote gezinnen of thuiswerkers die ruimte en comfort zoeken.

BEGANE GROND
Bij binnenkomst treft u een royale hal met toegang tot het toilet, de meterkast en een praktische ruime trapkast. Vanuit de hal bereikt u tevens direct de garage. Deze ruime, volledig geïsoleerde garage beschikt over toegangsdeuren vanaf zowel de oprit als de tuin – ideaal voor dagelijks gebruik, opslag of hobby’s.
De sfeervolle woonkamer is tuingericht en middels en-suite deuren afgescheiden van de royale woonkeuken. Dankzij de schuifpui aan de achterzijde geniet u van veel natuurlijk licht en heeft u directe toegang tot de zonnige, fraai aangelegde tuin met meerdere terrassen. Hier kunt u op elk moment van de dag heerlijk buiten vertoeven.

Aan de voorzijde van de woning bevindt zich de woonkeuken, voorzien van een gezellige erker die zorgt voor extra lichtinval en sfeer. De keuken is gescheiden van de woonkamer en uitgevoerd in een moderne, lichte stijl. Deze is voorzien van diverse inbouwapparatuur, waaronder een vaatwasser, een 4-pits gaskookplaat op glas, een afzuigkap en een koelkast. Een perfecte plek voor kookliefhebbers en gezellige diners.
Naast de woning bevindt zich een praktisch schuurtje, ideaal voor het opbergen van tuinmaterialen, fietsen of andere spullen.
De gehele begane grond is voorzien van comfortabele vloerverwarming, wat bijdraagt aan een aangenaam binnenklimaat.

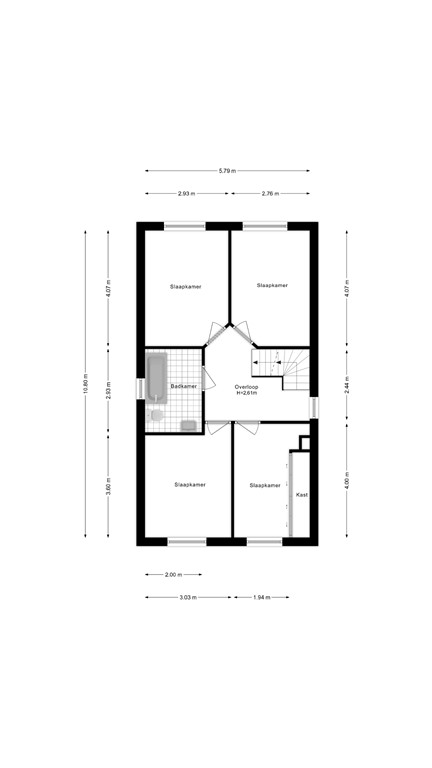
EERSTE VERDIEPING
Op de eerste verdieping bevinden zich maar liefst vier slaapkamers, ideaal voor een gezin of voor wie graag een werk- of hobbykamer wil inrichten. De hele verdieping is voorzien van een lichte laminaatvloer, wat zorgt voor een frisse, moderne uitstraling.
Daarnaast beschikt deze verdieping over een lichte badkamer met zowel een ligbad als een inloopdouche. Ook hier is vloerverwarming aanwezig, voor extra comfort in de koudere maanden.

TWEEDE VERDIEPING
De tweede verdieping is verrassend ruim dankzij de brede dakkapel aan de zijkant van de woning. Hier vindt u nog twee slaapkamers en extra bergruimte, waardoor de woning in totaal maar liefst zes slaapkamers telt.

DUURZAAMHEID
De woning is voorzien van maar liefst 14 zonnepanelen, wat niet alleen bijdraagt aan een lagere energierekening, maar ook aan een duurzamer wooncomfort.

BIJZONDERHEDEN
•	Deze woning heeft een energielabel A
•	Vloerverwarming 
•	6 slaapkamers 
•	Ruime, geïsoleerde garage met toegangsdeuren vanaf oprit en tuin
•	14 zonnepanelen
•	Aanvaarding in overleg
•	Verkoop via: Prijsbewustmakelaars Dronten


Deze informatie is door ons met de nodige zorgvuldigheid samengesteld. Onzerzijds wordt echter geen enkele aansprakelijkheid aanvaard voor enige onvolledigheid, onjuistheid of anderszins, dan wel de gevolgen daarvan. Alle opgegeven maten en oppervlakten zijn indicatief.

Kenmerken