Beschrijving
Riante vrijstaande villa met 7 slaapkamers op rustige locatie in de Stripheldenbuurt
Op een rustige en groene locatie in de jonge Stripheldenbuurt staat deze riante vrijstaande villa (bouwjaar 2009), gelegen op een royaal perceel. De woning beschikt over maar liefst 7 slaapkamers, 2 badkamers, een moderne keuken en een ruime tuin rondom.
De ligging is ideaal voor gezinnen. Op loopafstand bevinden zich onder andere het natuurgebied De Oostvaardersplassen, basisscholen, kinderopvang, een supermarkt en een bushalte. Daarnaast zijn de uitvalswegen uitstekend bereikbaar; binnen enkele minuten bereikt u de A6 richting Amsterdam en Lelystad.
De woning biedt een solide basis en volop mogelijkheden om geheel naar eigen smaak te moderniseren. Dankzij de royale afmetingen is het mogelijk meerdere slaapkamers, een thuiskantoor, hobbyruimte of logeerkamers te realiseren. De grote tuin rondom de woning zorgt voor veel privacy, speelruimte voor kinderen en mogelijkheden voor tuinliefhebbers.
Begane grond
Entree met ruime hal, meterkast, vrij hangend toilet met fontein en trapopgang. De U-vormige woonkamer is door de vele raampartijen heerlijk licht en ingedeeld in een zit- en eetgedeelte. Het zitgedeelte beschikt over een open haard en openslaande deuren naar de achtertuin.
De luxe inbouwkeuken is uitgevoerd met moderne witte fronten, een zwart granieten werkblad en veel bergruimte en is voorzien van onder andere een 90 cm breed 6-pits gasfornuis met oven, afzuigkap met motor, vaatwasser, koelkast, combi-magnetron en een koffieautomaat.
Vanuit de keuken is er toegang tot de bijkeuken met wasmachineaansluiting, tuindeur en CV-opstelling . Via de bijkeuken bereikt u de riante slaapkamer op de begane grond met aangrenzende moderne badkamer. Deze met licht betegelde badkamer is voorzien van een ruime 2 persoons inloop douche, mooie houten wastafel meubel, spiegel met verlichting, vrij hangend toilet en design radiator.
De gehele begane grond is afgewerkt met gestuukte wanden en een lichte tegelvloer voorzien van vloerverwarming.
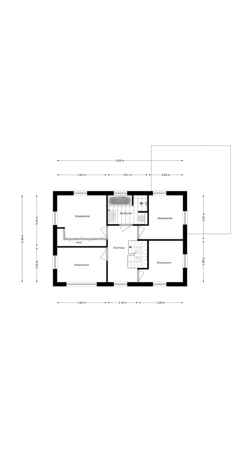
Eerste verdieping
Overloop met toegang tot vier slaapkamers van verschillende afmetingen en een complete badkamer voorzien van een extra groot ligbad, vrij hangend toilet, wastafel en douchehoek. De badkamer is volledig betegeld en goed onderhouden.
Tweede verdieping
Overloop met bergruimte en toegang tot twee slaapkamers, beide voorzien van Velux dakramen.
Tuin
De zeer ruime achtertuin is gelegen op het noordoosten, maar dankzij de hoekligging is er gedurende de gehele dag zon en altijd een plek met schaduw. De tuin beschikt over meerdere terrassen, een groot gazon en een groentetuin.
Bijzonderheden
• 7 slaapkamers
• 2 badkamers
• Woonkamer met open haard
• Parkeren op eigen terrein
• Ruime tuin rondom
• Oplevering in overleg
Laat je verrassen door de Lampestraat 1 Almere en plan snel een bezichtiging!
Deze informatie is door ons met de nodige zorgvuldigheid samengesteld. Onzerzijds wordt echter geen enkele aansprakelijkheid aanvaard voor enige onvolledigheid, onjuistheid of anderszins, dan wel de gevolgen daarvan. Alle opgegeven maten en oppervlakten zijn indicatief.