Beschrijving
SFEERVOL EN INSTAPKLAAR WONEN IN HET GELIEFDE ELDEN]
Op zoek naar een instapklare en energiezuinige woning in een rustige, kindvriendelijke omgeving? Deze sfeervolle tussenwoning in het geliefde Elden in jaren ’30-stijl biedt alles wat je nodig hebt: een royale woonkamer en moderne open keuken, vier ruime slaapkamers, badkamer met 2e toilet, ruime zolder en een zonnige tuin op het zuidoosten en voorzien van een houten berging en sfeervolle overkapping. Dankzij de uitstekende isolatie en airco woon je hier niet alleen comfortabel, maar ook duurzaam met energielabel A.
BIJZONDERHEDEN VAN DEZE WONING:
- Instapklare tussenwoning in jaren ’30-stijl (bouwjaar 1999);
- Energielabel A
- Royale woonkamer met schuifpui naar een zonnige tuin;
- Luxe open keuken voorzien van hoogwaardige inbouwapparatuur;
- Vier ruime slaapkamers, waaronder een royale zolderkamer;
- Gezellige overkapping die grenst aan de woonkamer, 2e overkapping die aan de schuur vastzit;
- Zolder en 1 slaapkamer voorzien van airco;
- Rolluiken voor- en achterzijde;
- Onderhoudsarme tuin voorzien van een berging, overkapping en achterom;
- Rustige en kindvriendelijke ligging in het geliefde Elden;
- De nabije omgeving biedt diverse voorzieningen, uitvalswegen en prachtige natuurgebieden.
INDELING:
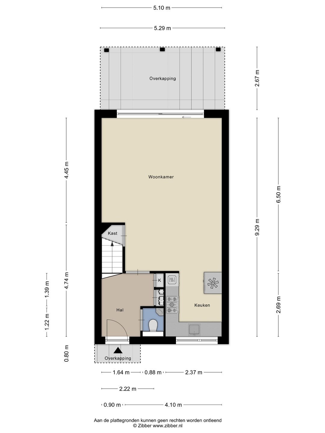
Begane grond:
Entree met de hal, toilet en toegang tot de lichte, tuingerichte woonkamer. Dankzij de grote schuifpui geniet je volop van daglicht en is de tuin een verlengde van de woonkamer. De open keuken is uitgerust met inbouwapparatuur (, combi-oven, 4-pits gaskookplaat, vaatwasser en afzuigkap).
1e verdieping:
Overloop met toegang tot 3 slaapkamers en de moderne badkamer, voorzien van een douchecabine, wastafel, ligbad en tweede toilet.
2e verdieping:
Overloop met wasmachine aansluiting in apart betegeld washok, cv-installatie en mechanische ventilatie) en toegang tot een royale vierde slaapkamer die dankzij de vaste internetaansluiting ook zeer geschikt is als thuiskantoor.
Tuin:
De onderhoudsvriendelijke achtertuin ligt op het zonnige zuidoosten en is voorzien van een houten berging, overkapping en een achterom.
BIJZONDERHEDEN:
- Bouwjaar: 1999
- Woonoppervlakte: 112 m2
- Inhoud: 395 m3
- Perceeloppervlakte: 142 m2
- Energielabel A
- Alle kamers voorzien van netwerkbekabeling en patchpaneel in meterkast
LOCATIE:
Elden is een rustige en kindvriendelijke wijk in Arnhem met een dorps karakter, fraaie boerderijen en een gezellig dorpsplein. In de wijk zijn diverse voorzieningen zoals basisscholen, kinderopvang, sportverenigingen. Ook winkelcentrum Kronenburg, Park Lingezegen en de uiterwaarden van de Rijn liggen vlakbij. Met de fiets ben je in 15 minuten in het centrum van Arnhem. De uitvalswegen (Pleijroute en A50/A12) en openbaar vervoer zijn uitstekend bereikbaar.
Deze informatie is door ons met de nodige zorgvuldigheid samengesteld. Onzerzijds wordt echter geen enkele aansprakelijkheid aanvaard voor enige onvolledigheid, onjuistheid of anderszins dan wel de gevolgen daarvan. Alle opgegeven maten en oppervlakten zijn indicatief.