Beschrijving
De Schepel 13 – Ruimte, comfort en een heerlijk rustige plek in De Landmaten
Ben je klaar om een mooie stap te zetten op de woningmarkt? Dan verdient De Schepel 13 in Dronten absoluut jouw aandacht. Deze ruime twee‑onder‑één‑kapwoning uit 1991 ligt in de geliefde wijk De Landmaten en biedt alles wat je zoekt: veel leefruimte, licht, comfort én de mogelijkheid om volledig gelijkvloers te wonen. Een ideale gezinswoning, maar ook perfect voor wie wonen en slapen op de begane grond belangrijk vindt.
Speelse indeling & verrassend veel ruimte
Deze woning heeft meer in huis dan je op het eerste gezicht denkt. Verdeeld over drie woonlagen vind je volop leefruimte, terwijl scholen, winkels en speelvoorzieningen letterlijk om de hoek liggen. Het perceel van 231 m² geeft je bovendien net dat beetje extra vrijheid en privacy.
Gelijkvloers wonen: slaapkamer én badkamer beneden
Een echte troef van deze woning is de slaapkamer met eigen badkamer op de begane grond. Ideaal voor ouders die geen trap meer willen lopen, een tiener die graag zijn eigen domein heeft of gasten die blijven logeren. Natuurlijk kun je de ruimte ook inzetten als werk- of hobbykamer. De moderne badkamer (2025) is voorzien van een ruime inloopdouche en een stijlvol wastafelmeubel.
Lichte woonkamer & zonnige tuin op het zuiden
Via de hal met toilet, meterkast en trapopgang stap je de lichte woonkamer binnen. Dankzij de grote raampartijen valt het daglicht hier royaal naar binnen en voelt de ruimte direct warm en uitnodigend.
De keuken aan de voorzijde is compleet uitgerust met o.a. een koel/vrieskast, vaatwasser, inductiekookplaat, afzuigkap en combi‑oven. Vanuit de ruime woonkamer met mooie houtkachel bereik je een tweede hal met toegang tot de garage én de beneden slaapkamer en badkamer.
Via de schuifpui of de achterdeur loop je zo de verzorgde achtertuin op het zuiden in. Hier geniet je van het vroege voorjaar tot ver in het najaar van de zon. De tuin is overzichtelijk, onderhoudsvriendelijk en biedt genoeg plek voor spelende kinderen of huisdieren.
Verwarmde garage met extra mogelijkhedenDe garage is voorzien van een nette pui met inloopdeur. Perfect voor het stallen van fietsen, opslag van spullen of het uitoefenen van hobby’s. Je kunt hier echt alle kanten op.
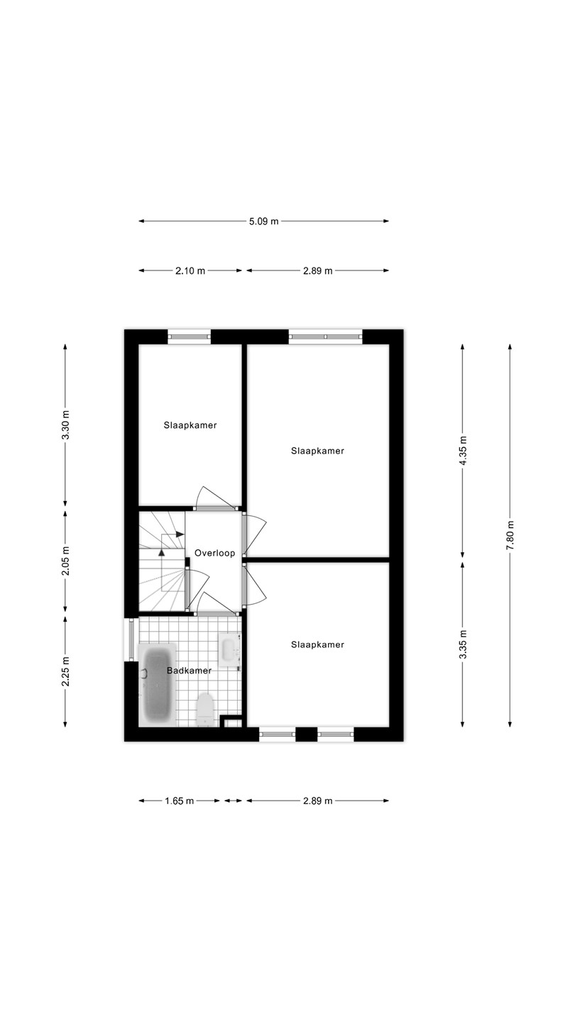
Drie slaapkamers op de eerste verdieping, een vierde op zolder
Op de eerste verdieping vind je drie volwaardige slaapkamers, allemaal licht en prettig van formaat. Hier bevindt zich ook de tweede badkamer, uitgerust met lichte tegels, een ligbad, douche, hangend toilet en brede wastafel.
De tweede verdieping verrast opnieuw: hier ligt de vierde slaapkamer, ideaal voor een groot gezin, logees of als thuiskantoor. Aan de voorzijde is extra bergruimte aanwezig de stookruimte en wasmachine aansluiting.
Alles bij elkaar: een échte gezinswoning
Of je nu een jong gezin bent, levensloopbestendig wilt wonen of gewoon op zoek bent naar ruimte en comfort: deze woning past zich moeiteloos aan jouw levensfase aan. De wijk De Landmaten staat bekend om zijn groene, ruim opgezette karakter en de fijne ligging nabij winkels, scholen en speeltuinen. Binnen enkele minuten ben je in het centrum van Dronten of op de uitvalswegen.
Zie jij jezelf hier al wonen? Maak dan snel een afspraak voor een bezichtiging. Ga naar onze website www.prijsbewustmakelaars.nl of vraag via Funda een bezichtiging aan.
Deze informatie is door ons met de nodige zorgvuldigheid samengesteld. Onzerzijds wordt echter geen enkele aansprakelijkheid aanvaard voor enige onvolledigheid, onjuistheid of anderszins, dan wel de gevolgen daarvan. Alle opgegeven maten en oppervlakten zijn indicatief.