Beschrijving
Let op! de woning staat onder bod. Er worden geen bezichtigingen meer gepland.
Vrijstaand wonen in het groen met alle gemakken
Rust, ruimte en comfort op kleinschaligpark "Onze Woudstee". Deze vrijstaande woning (2012) biedt gelijkvloers wonen dankzij een slaapkamer op de begane grond. Perfect voor natuurliefhebbers die toch alle voorzieningen binnen handbereik willen.
Locatie Het bosrijke park "Onze Woudstee" combineert een groene, beschutte ligging met optimale bereikbaarheid. De uitgestrekte Veluwse bossen en de indrukwekkende zandverstuiving liggen op loopafstand. Het sfeervolle centrum van Harderwijk bereik je in tien minuten fietsen - met zijn gevarieerde winkelaanbod, restaurants en gezellige terrasjes aan het water.
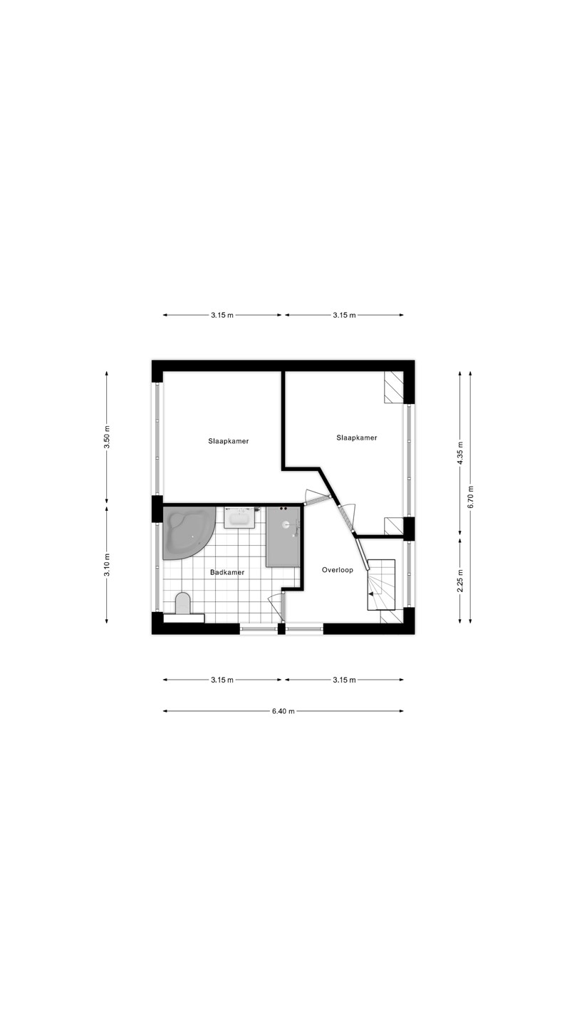
Indeling
Begane grond Eigen parkeerplaats voor twee auto's. Entree met hal, meterkast, toilet, bijkeuken en slaapkamer. Lichte woonkamer met houten vloer, grote raampartijen en schuifpui naar de tuin. Open keuken in lichte uitvoering met voldoende werk- en bergruimte en complete apparatuur. Ruime slaapkamer, ideaal voor gelijkvloers wonen. Bijkeuken met wasmachineaansluiting, cv-ketel en trap naar boven.
Eerste verdieping Royale overloop met toegang tot twee ruime slaapkamers. Moderne badkamer in lichtblauw met donkere houten accenten en gietvloer. Uitgerust met ligbad, inloopdouche, wastafelmeubel en hangtoilet.
Buitenruimte Veranda met drie lichtkoepels. Tuin rondom met volop privacy, zonneterras, gazon en gevarieerde beplanting. Ruim tuinhuis en beregeningssysteem.
Parkgegevens Eigen grond. VvE-lidmaatschap verplicht. Parkkosten ca. € 445,- per jaar. Water ca. € 1,55 per m³. Afval € 1,96 per zak (60 liter).
Kenmerken
Let op! betreft permanent wonen.
• Woonoppervlakte: 102 m²
• Perceeloppervlakte: 481 m²
• Bouwjaar: 2012
• Energielabel: C
• Slaapkamer op begane grond
• Vrijstaand met veel privacy
Bezichtiging Nieuwsgierig geworden? Neem vrijblijvend contact op voor een bezichtiging.
Alle informatie is met zorgvuldigheid samengesteld. Aan deze gegevens kunnen geen rechten worden ontleend. Opgegeven maten en oppervlakten zijn indicatief.