Beschrijving
Woldplantsoen 1
Gelegen nabij het prachtige Woldpark en een winkelcentrum, bevindt zich deze ruime hoekwoning op een vrije hoek van het gewilde 'Woldplantsoen'. Met een woonoppervlak van 144 m², een besloten achtertuin, een dakterras en vier ruime slaapkamers, biedt deze woning op een perceel van 190 m² een ideale thuisbasis voor het hele gezin.
Indeling:
Begane grond:
U betreedt de woning via de ruime entree, die leidt naar een betegelde toiletruimte met een zwevend toilet en toegang tot de royale woonkamer. De woonkamer is voorzien van dubbele openslaande deuren naar de achtertuin en heeft een doorlopende indeling tot de voorzijde van de woning. De riante keuken is uitgerust met een breed 6-pits fornuis en diverse inbouwapparatuur. In het midden van de woning bevindt zich een praktische werkkast en een 'luie trap' naar de eerste verdieping. De gehele begane grond is uitgerust met vloerverwarming, wat zorgt voor een optimaal gebruik van de vloeroppervlakte.
Eerste verdieping:
De ruime overloop op de eerste verdieping biedt toegang tot twee lichte slaapkamers en een royale, betegelde badkamer. Deze badkamer is voorzien van een instapdouche, een wastafel, een designradiator voor handdoeken en een breed wandmeubel. Vanuit de overloop heeft u ook toegang tot het ruime, besloten dakterras, dat privacy biedt. Naast het dakterras is er een praktische berging.
Tweede verdieping:
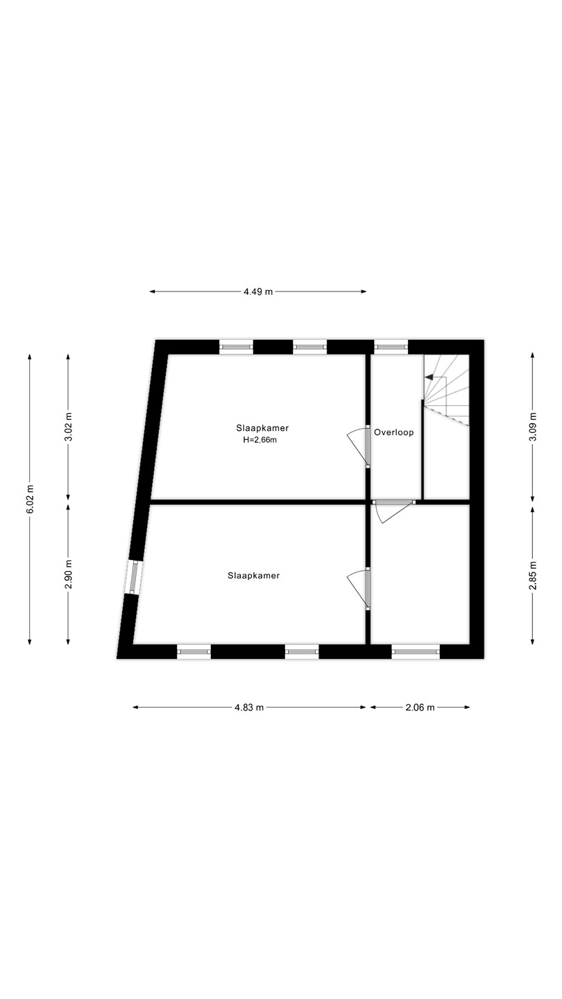
Via de royale vaste trap bereikt u de lichte overloop van de tweede verdieping. Deze overloop loopt door naar een ruime wasruimte, waar de wasmachine en droger zijn geïnstalleerd, samen met de ventilatie-unit en de cv-ketel. Ook bevinden zich op deze verdieping twee ruime slaapkamers.
Tuin:
Achter de woning, bereikbaar via de woonkamer en de voortuin, ligt een besloten achtertuin. Deze tuin is deels ommuurd en deels omheind met schuttingen, en biedt veel privacy. De geheel betegelde tuin bevat aan de achterzijde een moderne, vrijstaande berging.
Een perfecte woning voor wie ruimte en comfort zoekt!
Laat je verrassen door het Woldplantsoen 1 in Lelystad en plan snel een bezichtiging!
Deze informatie is door ons met de nodige zorgvuldigheid samengesteld. Onzerzijds wordt echter geen enkele aansprakelijkheid aanvaard voor enige onvolledigheid, onjuistheid of anderszins, dan wel de gevolgen daarvan. Alle opgegeven maten en oppervlakten zijn indicatief.