Beschrijving
De Lange Streek 44 Swifterbant
Let op! Betreft bieden vanaf prijs.
Ruimte, rust en een groene oase in Swifterbant
Welkom aan De Lange Streek 44 – een heerlijke plek waar comfort, ruimte en natuur samenkomen. Deze ruime twee-onder-een-kapwoning ligt in een kindvriendelijke, groene wijk in Swifterbant en is keurig onderhouden. Hier geniet je van een royale, zonnige tuin, volop leefruimte en een fijne ligging met veel privacy.
De woning beschikt over een eigen oprit met parkeergelegenheid voor meerdere auto’s. Daarnaast biedt de gemeentelijke oprit extra ruimte – ideaal voor bezoek of meerdere voertuigen.
________________________________________
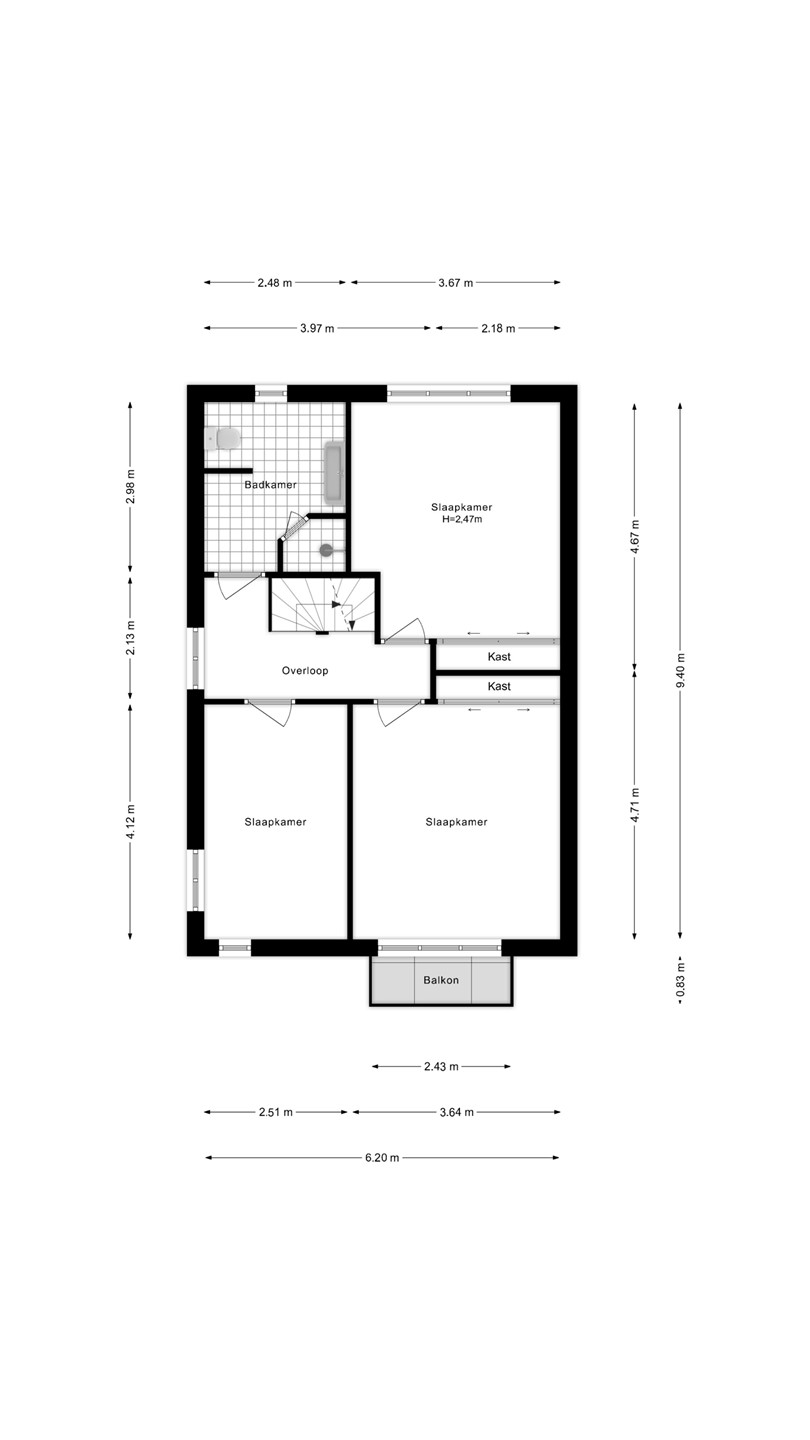
Indeling
Begane grond
Via de entree met hal, meterkast en trapopgang kom je binnen in de lichte, ruime woonkamer. Dankzij de grote ramen valt direct de fijne lichtinval op. De wanden en plafonds zijn strak afgewerkt en geven de ruimte een moderne uitstraling. De gehele beneden verdieping is voorzien van een moderne laminaatvloer met vloerverwarming.
Aan de achterzijde bevindt zich de eethoek met aangrenzende lichte keuken in U-opstelling, voorzien van alle gemakken: een vaatwasser, inductiekookplaat, rvs-afzuigkap, combi-oven en koel-/vriescombinatie.
Aansluitend aan de keuken ligt de praktische bijkeuken, waarmee de garage is verlengd tot maar liefst 7 meter diepte!
De achtertuin is een echt pareltje: fraai aangelegd, onderhoudsvriendelijk en perfect gelegen op het zuidwesten. Hier geniet je volop van de zon én privacy, omringd door groen. De sfeervolle houten veranda met overdekte zitplek en berging maakt het plaatje compleet – een heerlijke plek om te ontspannen.
De garage is voorzien van openslaande deuren, elektra, water, en verwarming en is zeer netjes afgewerkt.
________________________________________
Eerste verdieping
Op de eerste verdieping bevinden zich drie ruime slaapkamers. De grootste slaapkamer aan de voorzijde heeft bovendien toegang tot een balkon. De ruime badkamer is compleet ingericht met een douche, tweede toilet en wastafel.
________________________________________
Tweede verdieping
De tweede verdieping biedt extra ruimte voor een slaap- of werkkamer en extra bergruimte. Hier bevindt zich ook de cv-installatie (Vaillant, 2023).
________________________________________
Wonen in Swifterbant
Swifterbant is een levendig en gemoedelijk dorp binnen de gemeente Dronten. Een ideale woonomgeving voor gezinnen: er zijn meerdere basisscholen, kinderopvang, sportverenigingen en zelfs een zwembad. Voor de dagelijkse boodschappen vind je alles in de buurt, en zowel Dronten als Lelystad zijn binnen korte tijd bereikbaar voor een uitgebreider winkelaanbod.
Ben je op zoek naar een woning waar jouw gezin alle ruimte heeft – binnen én buiten?
Bijzonderheden:
Palletkachel
Vloerverwarming
mooie schuifpui achterzijde
elektrische zonnewering achter
Laat je verrassen door De Lange Streek 44 in Swifterbant en plan snel een bezichtiging!
Deze informatie is door ons met de nodige zorgvuldigheid samengesteld. Onzerzijds wordt echter geen enkele aansprakelijkheid aanvaard voor enige onvolledigheid, onjuistheid of anderszins, dan wel de gevolgen daarvan. Alle opgegeven maten en oppervlakten zijn indicatief.